深圳市鹽田區海智云谷五星級農貿市場項目
一、項目介紹
海智云谷地處鹽田區沙頭角核心片區,毗鄰鹽田區政府,由深圳市特區建設發展集團有限公司投資建設,總建筑面積約14.3萬m?。其中海智云谷生鮮廣場面積1.1萬平米,作為項目配套商業,以“服務社區,方便鄰里”為經營理念,利用當下最前沿的智慧農貿市場+供港蔬菜標準+社區商業運營體系,打造“社區生鮮廣場+鄰里中心+社區服務商業+便民集市+樂活夜市”等多層次、多場景、全時全齡段的4.0社區生活業態。
海智云谷生鮮廣場通過科學規劃,實現每一層商業業態都是首層的購物體驗。項目一層通過引入主題餐飲+便民集市+樂活夜市,充分發揮緊鄰鹽田區主干道深鹽路的交通優勢,打造鹽田區最具活力的商業消費中心。項目二層直面社區,通過引入鄰里中心+社區服務商業+休閑餐飲+兒童游樂等業態,精準服務周邊近20個社區及沙頭角片區近10萬消費人群。項目三層通過空中連廊直通社區,周邊居民可直達海智云谷五星級農貿市場,供港標準的綠色新鮮蔬菜、肉類、水果、米面油鹽、副食干調、水產海鮮、精品百貨、日雜用品等一站式采購生活所需。項目四層車輛可直達,通過引入大型會所、美容美發、康體養生、針灸按摩等業態,滿足社區居民更高品質生活需求。
海智云谷生鮮廣場主營業態有海智云谷五星級農貿市場、大型百貨商超、餐飲美食城、兒童游樂場、海智云谷夜市。涵蓋經營品類有四季新鮮蔬菜、水果、鮮肉及水產凍品、糧油干調、副食百貨,以及特色美食餐飲、休閑娛樂、康體養生、居家服務等社區商業服務,項目建成后,將是鹽田區品質最健康、品類最齊全、性價比最高、市場規模最大、管理最智慧的復合型未來型社區商業廣場。
二、項目服務內容
1、 項目市場調研報告
2、 項目定位與整體商業發展戰略方案
3、 項目生鮮廣場/農貿市場裝修設計規劃方案
4、生鮮廣場/農貿市場的招商運營方案
海智云谷地處鹽田區沙頭角核心片區,毗鄰鹽田區政府,由深圳市特區建設發展集團有限公司投資建設,總建筑面積約14.3萬m?。其中海智云谷生鮮廣場面積1.1萬平米,作為項目配套商業,以“服務社區,方便鄰里”為經營理念,利用當下最前沿的智慧農貿市場+供港蔬菜標準+社區商業運營體系,打造“社區生鮮廣場+鄰里中心+社區服務商業+便民集市+樂活夜市”等多層次、多場景、全時全齡段的4.0社區生活業態。
海智云谷生鮮廣場通過科學規劃,實現每一層商業業態都是首層的購物體驗。項目一層通過引入主題餐飲+便民集市+樂活夜市,充分發揮緊鄰鹽田區主干道深鹽路的交通優勢,打造鹽田區最具活力的商業消費中心。項目二層直面社區,通過引入鄰里中心+社區服務商業+休閑餐飲+兒童游樂等業態,精準服務周邊近20個社區及沙頭角片區近10萬消費人群。項目三層通過空中連廊直通社區,周邊居民可直達海智云谷五星級農貿市場,供港標準的綠色新鮮蔬菜、肉類、水果、米面油鹽、副食干調、水產海鮮、精品百貨、日雜用品等一站式采購生活所需。項目四層車輛可直達,通過引入大型會所、美容美發、康體養生、針灸按摩等業態,滿足社區居民更高品質生活需求。
海智云谷生鮮廣場主營業態有海智云谷五星級農貿市場、大型百貨商超、餐飲美食城、兒童游樂場、海智云谷夜市。涵蓋經營品類有四季新鮮蔬菜、水果、鮮肉及水產凍品、糧油干調、副食百貨,以及特色美食餐飲、休閑娛樂、康體養生、居家服務等社區商業服務,項目建成后,將是鹽田區品質最健康、品類最齊全、性價比最高、市場規模最大、管理最智慧的復合型未來型社區商業廣場。
海智云谷生鮮廣場通過引入智慧農貿市場,利用物聯網、云計算、大數據等技術,在食品溯源、智能電子支付等方面,做到讓消費者放心、商戶舒心、企業安心、政府省心。同時采用供港標準的全國蔬菜水果水產種植養殖基地優勢賦能市場商戶,為商家提供優質貨源,科學決策信息,為市場提供智能調度、質量監控和價格預測等等。優勢的廣告資源,專業的商業運營服務團隊,現代化的營銷理念,全方位助力項目商業發展。
二、項目服務內容
1、 項目市場調研報告
2、 項目定位與整體商業發展戰略方案
3、 項目生鮮廣場/農貿市場裝修設計規劃方案
4、生鮮廣場/農貿市場的招商運營方案
三、項目合作成果部分展示
海智云谷生鮮廣場整體外觀規劃設計效果圖
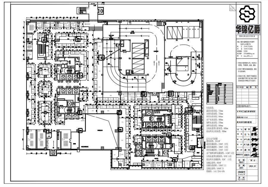
五星級農貿市場樓層規劃設計效果圖
鹽田區智慧農貿市場/放心農貿市場示范基地海智云谷生鮮廣場啟動儀式盛大舉行
鹽田區人大常委會主任 喬宏彬、市場監督管理局副局長莫熙玲、鹽田區委常委、區委(區政府)辦公室主任肖凱、深圳市特區建設發展集團有限公司副總經理劉超洋、市場監督管理局鹽田局局長方友川、鹽田區工業和信息化局局長汪大鵬、鹽田區文體旅游局一級調研員彭潔、鹽田區退役軍人事務局局長張遠飛,深圳市特區建發科技園區發展有限公司董事長袁綱、總經理許賀,深圳警通實業集團有限公司董事長郭曉民、總裁許靜芬等領導出席啟動儀式。
深圳警通實業集團有限公司董事長郭曉民致辭
深圳市特區建設發展集團有限公司副總經理劉超洋致辭
鹽田區委常委、區委(區政府)辦公室主任肖凱致辭
隨著倒數聲,干冰啟動儀式啟動,海智云谷智慧農貿市場啟動儀式正式拉開序幕
現場商戶人氣爆棚
- 上一篇: 北京市房山區京西坤岳城集貿市場項目
- 下一篇: 沒有了

